Zürich Facades (5)



Download PDF
Fitzrovia

Contains a selection of student projects from the autumn semester 2011, for two sites in Fitzrovia, London, UK.



Download PDF
St. Moritz

Contains all projects by students, situated on a site in St Moritz, Switzerland,

Diploma 2016.



Download PDF
Workplace

Contains a selection of student projects for a number of sites in the St Giles District, London, UK, and atmospheric studies of existing office spaces, spring semester 2010. In addition a paper entitled, ‘Workplace’ by Jonathan Sergison, and ‘The Economist – a building which is more than itself’, by Stephen Bates.



Download PDF
Berlin Rooms



Download PDF
Zürich Rooms (3)



Download PDF
Valle di Muggio. Survey 2

Contains a selection of projects by students on a site in Valle di Muggio, Switzerland, spring semester 2021.



Download PDF
Locarno Survey



Download PDF
Urban Picturesque

Contains a selection of student projects situated in Depford, London, UK, in the autumn semester 2008. In addition, a paper entitled ‘The Urban Picturesque’, by Jonathan Sergison, and ‘Ten more rooms’, by Stephen Bates.



Download PDF
Berlin Facades

Contains a survey of spaces in existing apartments, photographed and then remade as models to represent their atmospheric qualities, autumn semester 2015.



Download PDF
A Plan for Zürich (3)



Download PDF
Shul Survey



Download PDF
Lisbon

Contains a selectionof student project on site in Lisbon,

Portugal,

Diploma 2025.



Download PDF
Schoolness

Contains a selection of student projects situated in Sommers Town, London, UK, in the spring semester 2009. In addition a paper entitled ‘Schoolness’ by Jonathan Sergison, and ‘To use less’, by Stephen Bates.



Download PDF
Torino



Download PDF
A Plan for Zürich (4)



Download PDF
Shul

Contains a selection of projects by students on sites in Zurich, Switzerland, autumn semester 2021.



Download PDF
Athens



Download PDF
Inside Outside

Contains a selection of student projects for a number of sites in Bloomsbury, London, UK, and survey drawings of London terraced houses, in the autumn semester 2009. In addition a paper entitled, ‘Inside/outside’ by Jonathan Sergison.



Download PDF
Torino Survey

Contains survey drawings of existing apartment building facades in Turin, Italy, spring semester 2016.



Download PDF
Hasliberg



Download PDF
Brussels

Contains a selection of student pfoject on site in Brussels,

Belgium,

Diploma 2022.



Download PDF
Athens



Download PDF
Tel Aviv

Contains a selection of student projects from the autumn semester 2010, for a number of sites in the centre of Tel Aviv, Israel, and survey drawings of a number of apartment buildings from the 1930 and 50’s in the city. In addition a paper entitled, ‘Modernism as a contemporary vernacular, 1’ by Jonathan Sergison.



Download PDF
Torino Rooms

Contains a survey of spaces in existing rooms in Turin, photographed and then remade as models to represent their atmospheric qualities, spring semester 2016.



Download PDF
Milano



Download PDF
Florence Survey

.



Download PDF
Palau

Contains a selection of student projects from the spring semester 2011, for a number of sites in Palau, Sardinia, Italy, and a photographic survey of houses by Alberto Ponis. In addition a paper entitled, ‘Modernism as a contemporary vernacular, 2’ by Jonathan Sergison.



Download PDF
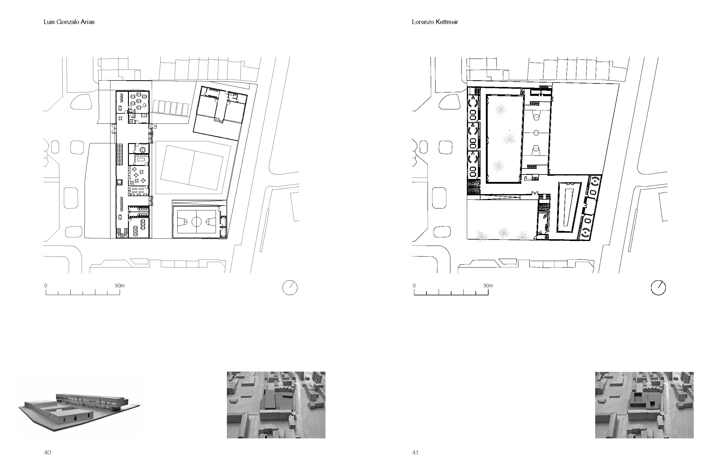
Salzberg

Contains a selection of student projects on site in Salzburg, Austria,

Diploma 2017.



Download PDF
A Plan for Zürich (5)



Download PDF
Florence Catalogue

.



Download PDF
Genoa Catalogue

.



Download PDF
Zürich

Contains a selection of projects by students for projects situated on a number of sites in Zurich, Switzerland, spring semester 2012.



Download PDF
Max Bill

Contains a selection of projects by students, situated on the Max Bill house site in Zurich, Switzerland autumn semester 2016.



Download PDF
Zürich Facades (6)



Download PDF
Genoa Survey

.



Download PDF
Napoli

Contains a selection of projects by students for projects situated on a number of sites in Naples, Italy, autumn semester 2012.



Download PDF
Haus Bill Art Space

Contains a survey of spaces in existing museums, photographed and then remade as models to represent their atmospheric qualities, autumn semester 2016.

 



Download PDF
Clone of A Plan for Zurich (6)



Download PDF
Antwerp Catalogue

.



Download PDF
Bucharest

Contains a selection of projects by students, situated on a large site in Bucharest, Romania, spring semester 2013.



Download PDF
Bergamo

Contains a selection of student projects on site in Bergamo,

Italy,

Diploma 2018.



Download PDF
Chiasso

Contains a selection of student project on site in Chiasso,

Switzerland,

Diploma 2020.



Download PDF
Milan

Contains a selection of student project on site in Milan,

Italy,

Diploma 2023.



Download PDF
Burgenland

Contains a selection of projects by students, situated on a number of existing settlements in the Burgenland in Austria, autumn semester 2013.



Download PDF
A Plan for Zürich (1)



Download PDF
Lugano Facades



Download PDF
Kyoto Catalogue

.



Download PDF
Biel

Contains a selection of projects by students, situated on a large site in Biel/Bienne, Switzerland spring semester 2014.



Download PDF
Zürich Facades (1)



Download PDF
Lugano Rooms



Download PDF
Hotel Garden

Contains a selection of student projects for a hotel on a site situated on Lake Lugano, Switzerland, autumn semester 2014.



Download PDF
A Plan for Zürich (2)



Download PDF
Lugano

Contains a selection of projects by students on a site in Lugano, Switzerland, autumn semester 2020.



Download PDF
Basel

Contains a selection of student project on site in Basel,

Switzerland,

Diploma 2024.



Download PDF
Hotel Rooms

Contains a survey of spaces in existing hotels in Switzerland, and northern Italy, photographed and then remade as models to represent their atmospheric qualities, autumn semester 2014.



Download PDF
Zürich Facades (2)



Download PDF
Saint-Étienne

Contains a selection of student project on site in Saint-Étienne,

France,

Diploma 2021.



Download PDF
Stockholm



Download PDF
Milan Survey

Contains survey drawings of existing apartment building facades in Milan, Italy, spring semester 2015.



Download PDF
Cagliari

Contains a selection of student projects on site in Cagliari,

Italy,

Diploma 2019.



Download PDF
Valle di Muggio. Survey 1

Contains a selection of projects by students on a site in Valle di Muggio, Switzerland, spring semester 2021.



Download PDF
Stockholm Survey



Download PDF
Berlin

Contains a selection of student projects for apartment buildings on a number of sites in Berlin, Germany, spring semester 2015.



Download PDF
Zürich Facades (3)



Download PDF
Valle di Muggio

Contains a selection of projects by students on a site in Valle di Muggio, Switzerland, spring semester 2021.



Download PDF
Locarno



Download PDF